Вхід на сайт

Ел. пошта:
Пароль:

Реєстрація на сайті

Призвіще: Область:
Ім'я: Населений пункт:
    По батькові: Номер телефону:
    Ел. пошта: Компанія:
      Пароль: Посада:
      Повторіть пароль: Рік початку роботи:
      Фото:
      З правилами розміщення об'єктів погоджуюсь

      Забули пароль?

      Вкажіть ел. пошту — ми надішлемо Вам новий пароль для входу
      Ел. пошта:

      Проблема на сайті

      Закрити
      Ваш e-mail:
      (необов'язково)
      Розкажіть нам, що сталось

      Небесної Сотні — Здається офіс

      (г. Полтава, Ленинский район)

      6300 грн.

      Загальна площа: 41.2 кв.м

      Кімнат: 2

      Поверх: 1

      К-ть поверхів: 5

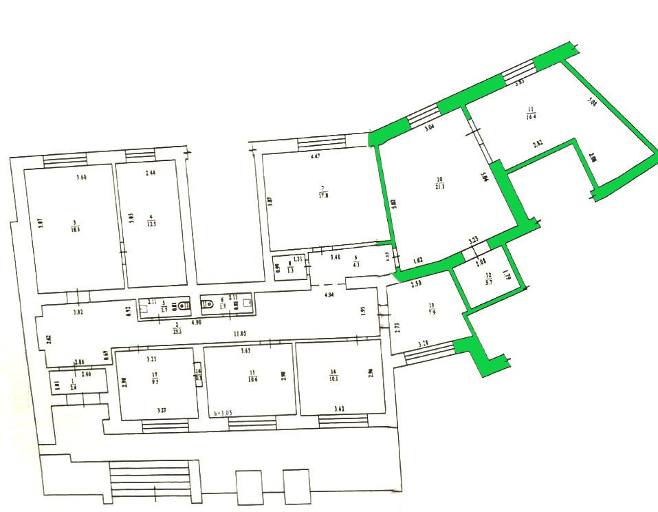
      Суборенда 1 кабінету загальною площею 21,1 м² в приміщенні дитячого центру на Подолі
      Розташування: вул. Н. Сотні (зуп. Оптика, р-н маг. АТБ), окремий вхід з фасаду будинку
      Характеристика:
      • 1 поверх, вхід з фасаду будинку, парковка для авто
      • кабінет площею 21,1 м²
      • комора 3,7 м²
      • санвузол для дорослих та коридор в загальному користуванні
      • висота приміщення H = 3,05 м
      • кабінети обладнанні кондиціонерами
      Комунікації:
      • централізоване опалення, водопостачання, електроенергія
      Особливості оренди:
      • доступ до приміщення лише з 8:00 до 20:00 (приміщення під сигналізацією в нічний час)
      • спільне використання входу та санвузлів з дитячою школою іноземної мови
      • вимоги перебування у змінному взутті або бахілах
      • вхідні двері на домофоні

      Вартість оренди: 6300 грн/міс (оплата перший та останній місяць) + комунальні послуги + послуги агенції нерухомості

      Ідеально підходить для: репетиторів, дитячих психологів, логопедів, освітніх центрів, консультаційних послуг у сфері освіти, творчих студій для дітей, навчальних просторів та інших бізнесів, сумісних з дитячою освітньою діяльністю.

      Шукаємо відповідальних та тихих орендарів, діяльність яких не перешкоджатиме навчальному процесу.

      Надіслати скаргу

      Закрити
      Поскаржитися на об'єкт «Небесної Сотні (г. Полтава, Ленинский район)»
      Ваш коментар:(Необов'язково)
      Ваша скарга буде надіслана ріелтору, що розмістив об'єкт, а також адміністрації сайту АФНУ.
      Ваше ім'я:
      (Обов'язково)
      Ваш e-mail для відповіді:
      (Обов'язково)

      Коментарі