Вхід на сайт

Ел. пошта:
Пароль:

Реєстрація на сайті

Призвіще: Область:
Ім'я: Населений пункт:
    По батькові: Номер телефону:
    Ел. пошта: Компанія:
      Пароль: Посада:
      Повторіть пароль: Рік початку роботи:
      Фото:
      З правилами розміщення об'єктів погоджуюсь

      Забули пароль?

      Вкажіть ел. пошту — ми надішлемо Вам новий пароль для входу
      Ел. пошта:

      Проблема на сайті

      Закрити
      Ваш e-mail:
      (необов'язково)
      Розкажіть нам, що сталось

      без комісії Карбишева, 2 — Продається торгівельний майданчик

      (г. Луцк)

      1500 грн. за кв.м.

      Загальна площа: 65 кв.м

      Продаж нових комерційних приміщень в районі Едельвіки

      Об'єкт зданий в експлуатацію!

      40Hub

      Розташування: приміщення розташовані на першому поверсі сучасного виробничо-офісного хабу по вул. Промислова, 1/3. На території діють термінали провідних поштових операторів України — Укрпошта та Нова Пошта, що забезпечує зручну логістику. Найбільший логістично-виробничий комплекс міста Луцька - загальна площа 135 000 м.кв. У хабі працюють великі заводи зі своїми цехами, а також представники рітейлу: супермаркет "Сім23", кав'ярня, магазин одягу, стоматологія та заклад харчування. Це ідеальне місце для бізнесу, орієнтованого на торгівлю, послуги або виробництво, завдяки постійному трафіку людей та доступу до логістичних і складських центрів. Загалом на території працюють бл. 3000 працівників. Поруч: ЖК CARAMEL RESIDENCE - 486 квартир, ЖК FAMILY - 216 квартир. Поруч є два навчальних заклади:
      Академія рекреаційних технологій і права і Луцький фаховий коледж рекреаційних технологій і права. (Загальна кількість студентів 1420)

      Характеристики:
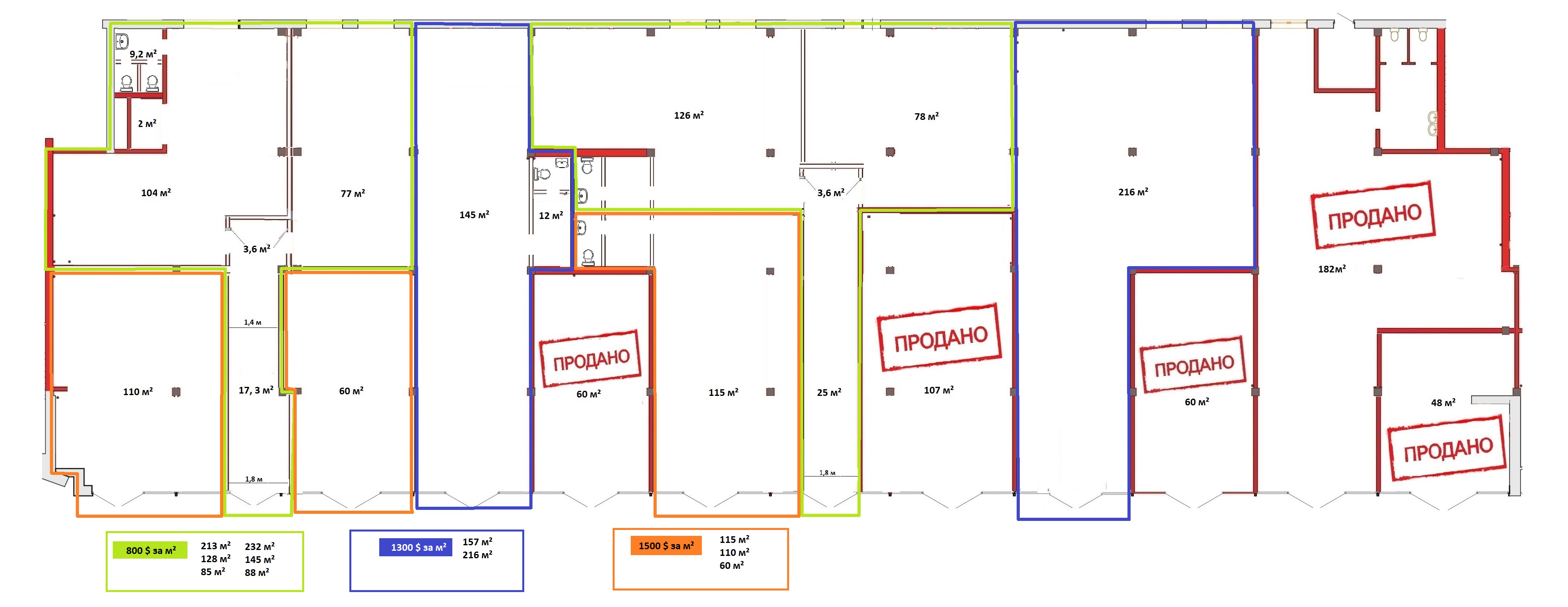
      - загальна площа 1500 м.кв., продано бл. 450 м.кв.,
      до продажу приміщення від 60, 110, 115 м.кв. (завдяки колонній системі планування є можливість перепланувань та об'єднання блоків у більші)
      - 1-ий поверх
      - окремий фасадний вхід (можливість облаштування окремого входу для погрузки-вигрузки товару)
      - відкрите планування (можливість перепланувань під вас)
      - новий готовий ремонт (на підлозі плитка, стеля армстронг з освітленням, стіни підготовленні для фарбування, готовий санвузол із сантехнікою)
      - великі панорамні вітрини (алюмінієвий профіль)
      - загальна ширина фасаду - 70 м, на кожне приміщення - 6 м
      - місце для розміщення фасадної рекламної вивіски
      - власна парковка на більше як 20 авто, поруч ще дві великих парковки
      - власні приміщення з виглядом на парк
      - високі стелі (2,8 м)
      - власний санвузол в кожному приміщенні
      - місце для розміщення літнього майданчика

      На парковці 7 електрозарядних станціій: одночасна зарядка 14 авто.
      Зарядка авто- безкоштовна.

      Комунікації: електрика, е-потужність: всього заведено 621кВт., є варіативність відносно площі: 33 кВт, 50 кВт, 80 кВт, 140 кВт, централізоване водопостачання та водовідведення.

      Вартість - 1500 дол. за м.кв.

      Можливі інші конфігурації приміщень з іншою шириною фасаду (1,8 м; 6 м) з вартістю 800, 1300, 1500 дол. за м.кв. (останнє фото)

      097 911 4040 (продаж від власника)

      Надіслати скаргу

      Закрити
      Поскаржитися на об'єкт «Карбишева, 2 (г. Луцк)»
      Ваш коментар:(Необов'язково)
      Ваша скарга буде надіслана ріелтору, що розмістив об'єкт, а також адміністрації сайту АФНУ.
      Ваше ім'я:
      (Обов'язково)
      Ваш e-mail для відповіді:
      (Обов'язково)

      Вам также могут подойти

      ул. Привокзальная, 10Е (г. Луцк) - Продається торгівельний майданчик, 1600 $ за кв.м. - АФНУ

      Оновлено: 9 лютого

      Розміщено: 9 лютого

      Продається торгівельний майданчик

      площа 66, поверх 1/2

      г. Луцк, ул. Привокзальная, 10Е

      1600 $ за кв.м. без комісії

      Данкін Олександр Олександрович

      керівник відділу комерційної нерухомості (Компанія "Атланта Нерухомість")

      Продаж комерції в ЖК "DreamTown"!

      Розташування: м. Луцьк, вул. Привокзальна, 10е. Розвинена інфраструктура, поруч: аптека, заклади харчування, магазин побутової хімії, АТБ, магазин "Аврора".Зручна транспортна розв'язка.

      Характеристики:
      - площа: 66 кв.м,…

      Детальніше

      ул. Привокзальная, 10Е (г. Луцк) - Продається торгівельний майданчик, 1600 $ за кв.м. - АФНУ

      Оновлено: 9 лютого

      Розміщено: 9 лютого

      Продається торгівельний майданчик

      площа 66, поверх 1/2

      г. Луцк, ул. Привокзальная, 10Е

      1600 $ за кв.м. без комісії

      Данкін Олександр Олександрович

      керівник відділу комерційної нерухомості (Компанія "Атланта Нерухомість")

      Продаж комерції в ЖК "DreamTown"!

      Розташування: м. Луцьк, вул. Привокзальна, 10е. Розвинена інфраструктура, поруч: аптека, заклади харчування, магазин побутової хімії, АТБ, магазин "Аврора".Зручна транспортна розв'язка.

      Характеристики:
      - площа: 66 кв.м,…

      Детальніше

      Коментарі