Вхід на сайт

Ел. пошта:
Пароль:

Реєстрація на сайті

Призвіще: Область:
Ім'я: Населений пункт:
    По батькові: Номер телефону:
    Ел. пошта: Компанія:
      Пароль: Посада:
      Повторіть пароль: Рік початку роботи:
      Фото:
      З правилами розміщення об'єктів погоджуюсь

      Забули пароль?

      Вкажіть ел. пошту — ми надішлемо Вам новий пароль для входу
      Ел. пошта:

      Проблема на сайті

      Закрити
      Ваш e-mail:
      (необов'язково)
      Розкажіть нам, що сталось

      пер. Бульварный — Продається торгівельний майданчик

      (г. Кривой Рог, Саксаганский район)

      24000 $

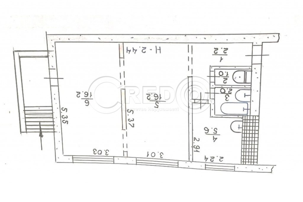
      Загальна площа: 43 кв.м

      Поверх: 1

      К-ть поверхів: 5

      Продаж магазину провулок Бульварний,5
      - Саксаганський район
      - зупинка "готель Київ"

      Технічні характеристики:
      - перший поверх 5-ти поверхового житлового будинку
      - окремий вхід
      - приміщення в гарному станні, діюче
      - гарний фасад
      - парковка біля приміщення

      Планування об’єкту:
      - загальна площа - 43,2кв.м
      - два торгівельних зали по 16кв.м
      - окремий центральний вхід

      Комунікації:
      - опалення центральне
      - центральне електропостачання 5кВт; 380 Вт
      - центральне водопостачання, каналізація
      - пожежна, охоронна сигналізації
      - кондиціонер

      Логістична розв’язка:
      - приміщення розташоване в спальному районі
      - поруч зупинки громадського транспорту
      - супермаркет "АТБ", магазини, аптека "АНЦ" та безліч інших магазинів
      - великий автомобільний та пішохідний трафік
      Продаж 24 000 у.о.

      За будь-якими питаннями за цією або іншими пропозиціями звертайтесь за номером телефону 067 696 16 51.
      З повагою, команда Credo!

      Надіслати скаргу

      Закрити
      Поскаржитися на об'єкт «пер. Бульварный (г. Кривой Рог, Саксаганский район)»
      Ваш коментар:(Необов'язково)
      Ваша скарга буде надіслана ріелтору, що розмістив об'єкт, а також адміністрації сайту АФНУ.
      Ваше ім'я:
      (Обов'язково)
      Ваш e-mail для відповіді:
      (Обов'язково)

      Вам также могут подойти

      ул. Софьи Перовской (г. Кривой Рог, Саксаганский район) - Продається торгівельний майданчик, 22500 $ - АФНУ

      Оновлено: 24 березня

      Розміщено: 30 травня 2023

      Продається торгівельний майданчик

      площа 44, поверх 1/4

      г. Кривой Рог, ул. Софьи Перовской

      22500 $

      Літвинова Ірина Вікторівна

      Продаж приміщення біля зупинки "пл. В.Великого"
      вул. С.Перовської.

      Про об'єкт:
      - Загальна площа - 44кв.м.
      - Торг.пл.30.2кв.м.

      Комунікації:
      - Центральний водопровід.
      - Електрика.
      - Центральна каналізація.
      - Асфальтована дорога.

      Локація:…

      Детальніше

      мкрн. Сонячний (г. Кривой Рог, Саксаганский район) - Продається торгівельний майданчик, 23500 $ - АФНУ

      Оновлено: 25 березня

      Розміщено: 6 жовтня 2025

      Продається торгівельний майданчик

      площа 39, поверх 1/2

      г. Кривой Рог, мкрн. Сонячний

      23500 $

      Літвинова Ірина Вікторівна

      Продаж магазину мікрорайон Сонячний
      - Саксаганський район
      - окремо розтошований двоповерховий ТК

      Технічні характеристики:
      - перший поверх двоповерхового комплексу
      - приміщення в робочому стані
      - гарний фасад
      - парковка біля…

      Детальніше

      ул. Корнейчука (г. Кривой Рог, Саксаганский район) - Продається торгівельний майданчик, 20000 $ - АФНУ

      Оновлено: 30 березня

      Розміщено: 19 листопада 2025

      Продається торгівельний майданчик

      площа 38, поверх 1/2

      г. Кривой Рог, ул. Корнейчука

      20000 $

      Літвинова Ірина Вікторівна

      Продаж приміщення вул. І. Авраменка
      Нежитлове приміщення розташоване в торгівельному комплексі з окремим входом та комунікаціями.

      Планування об’єкту:
      - Загальна площа – 38кв.м.,
      - Зала 20кв.м.,
      - Кабінет 8.1кв.м.,
      -…

      Детальніше

      Коментарі