Вхід на сайт

Ел. пошта:
Пароль:

Реєстрація на сайті

Призвіще: Область:
Ім'я: Населений пункт:
    По батькові: Номер телефону:
    Ел. пошта: Компанія:
      Пароль: Посада:
      Повторіть пароль: Рік початку роботи:
      Фото:
      З правилами розміщення об'єктів погоджуюсь

      Забули пароль?

      Вкажіть ел. пошту — ми надішлемо Вам новий пароль для входу
      Ел. пошта:

      Проблема на сайті

      Закрити
      Ваш e-mail:
      (необов'язково)
      Розкажіть нам, що сталось

      без комісії Мисливська, 24 — Продається квартира

      (пгт. Гостомель, г. Ирпень)

      36000 $

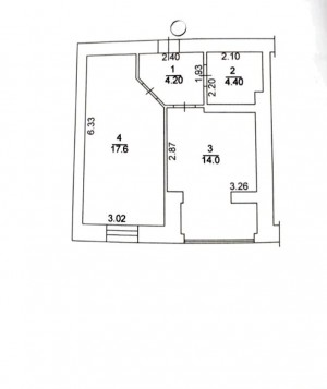
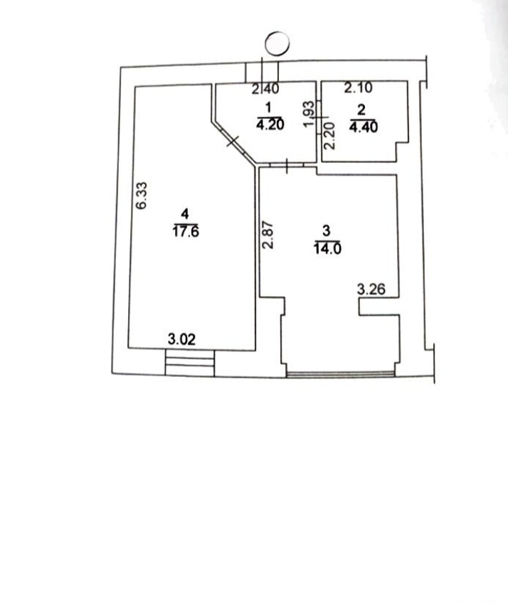
      Загальна площа: 40 кв.м

      Жила площа: 17 кв.м

      Площа кухні: 14 кв.м

      Кімнат: 1

      Поверх: 8

      К-ть поверхів: 10

      Сщ. Гостомель, вул. Мисливська, буд. 24
      1к. квартира, площею 40.2 м2
      Поверх 8/10
      Опалення: індивідуальне газове
      Зроблено: стяжка підлоги, штукатурка стін, встановлений котел

      Поруч: школа, дитячий садочок, кав’ярні, аптеки, салони краси, парк «Щасливий», торговий центр, дитячі майданчики, ринок, зручна транспортна розв’язка до м. Києва та інших міст

      Телефонуйте!

      Надіслати скаргу

      Закрити
      Поскаржитися на об'єкт «Мисливська, 24 (пгт. Гостомель, г. Ирпень)»
      Ваш коментар:(Необов'язково)
      Ваша скарга буде надіслана ріелтору, що розмістив об'єкт, а також адміністрації сайту АФНУ.
      Ваше ім'я:
      (Обов'язково)
      Ваш e-mail для відповіді:
      (Обов'язково)

      Вам также могут подойти

      Мисливська, 24 (пгт. Гостомель, г. Ирпень) - Продається квартира, 35000 $ - АФНУ

      Оновлено: 28 листопада 2025

      Розміщено: 28 жовтня 2025

      Продається квартира

      1 кімн., площа 40.2/17.6/14, поверх 8/10

      пгт. Гостомель, г. Ирпень, Мисливська, 24

      35000 $ без комісії

      Савка-Волкошовець Анна Мирославівна

      Керівник (Сімейна агенція нерухомості Liberty (сімейна АН Ліберті))

      Однокімнатна квартира в ЖК Авіатор 1.
      Будинок зданий в 2021 році.

      Перспективна локація. Будинок знаходиться при в'їзді в Бучу, біля парку Щасливий.
      Близько до Києва - до великої кільцевої дороги…

      Детальніше

      Коментарі