Вхід на сайт

Ел. пошта:
Пароль:

Реєстрація на сайті

Призвіще: Область:
Ім'я: Населений пункт:
    По батькові: Номер телефону:
    Ел. пошта: Компанія:
      Пароль: Посада:
      Повторіть пароль: Рік початку роботи:
      Фото:
      З правилами розміщення об'єктів погоджуюсь

      Забули пароль?

      Вкажіть ел. пошту — ми надішлемо Вам новий пароль для входу
      Ел. пошта:

      Проблема на сайті

      Закрити
      Ваш e-mail:
      (необов'язково)
      Розкажіть нам, що сталось

      Грушевського, 51 — Здається офіс

      (г. Хмельницкий)

      17000 грн.

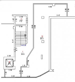
      Загальна площа: 64.5 кв.м

      Кімнат: 1

      Поверх: 2

      К-ть поверхів: 5

      Здам в оренду просторе та світле приміщення в центрі по вул.Грушевського 51, БЦ"Грушевський".
      Поверх: 2/5
      Площа: 64,5 м.кв.
      Вартість: 17000 грн/міс + комуналка (якщо з меблями +2000 грн)
      Оплата: одразу 1й, останній місяць + комісійні агентства.

      Працювати у такому бізнес центрі - це саме задоволення.
      Вигідна локація - самісінький центр міста, працює ліфт.
      Бізнес центр новий та сучасний, повністю працюючий, усі решта приміщень здані. Цілодобовий доступ. Світло 24/7. Панорамне фасадне вікно на всю ширину.
      Опалення - кондиціонер. Є можливість підключити централізоване. В приміщенні є виводи на воду/каналізацію.
      Приміщення вільне.
      Ключі на руках. Показ по домовленості.

      Надіслати скаргу

      Закрити
      Поскаржитися на об'єкт «Грушевського, 51 (г. Хмельницкий)»
      Ваш коментар:(Необов'язково)
      Ваша скарга буде надіслана ріелтору, що розмістив об'єкт, а також адміністрації сайту АФНУ.
      Ваше ім'я:
      (Обов'язково)
      Ваш e-mail для відповіді:
      (Обов'язково)

      Вам также могут подойти

      Грушевського, 57 (г. Хмельницкий) - Здається офіс, 10000 грн. - АФНУ

      Оновлено: 31 грудня 2025

      Розміщено: 4 червня 2025

      Здається офіс

      1 кімн., площа 47, поверх 2/3

      г. Хмельницкий, Грушевського, 57

      10000 грн.

      Осташевський Олексій Іванович

      Спеціаліст з нерухомості (ЦН "Золотий ключ")

      Оренда приміщення Центр, вул.Грушевського, 57
      Поверх: 2/3
      Площа: 47,7 м2.
      Вартість: 10000грн + комунальні.
      (Оплата: одразу 1-й, останній, + комісійні агентства)
      Здається з обладнанням. Три перукарських крісла, крісло для миття…

      Детальніше

      Грушевського, 57 (г. Хмельницкий) - Здається офіс, 10000 грн. - АФНУ

      Оновлено: 31 грудня 2025

      Розміщено: 4 червня 2025

      Здається офіс

      1 кімн., площа 47, поверх 2/3

      г. Хмельницкий, Грушевського, 57

      10000 грн.

      Осташевський Олексій Іванович

      Спеціаліст з нерухомості (ЦН "Золотий ключ")

      Оренда приміщення Центр, вул.Грушевського, 57
      Поверх: 2/3
      Площа: 47,7 м2.
      Вартість: 10000грн + комунальні.
      (Оплата: одразу 1-й, останній, + комісійні агентства)
      Здається з обладнанням. Три перукарських крісла, крісло для миття…

      Детальніше

      Грушевського, 57 (г. Хмельницкий, Центр) - Здається офіс, 10000 грн. - АФНУ

      Оновлено: вчора

      Розміщено: 3 грудня 2025

      Здається офіс

      2 кімн., площа 47.7, поверх 2/3

      г. Хмельницкий, Грушевського, 57

      10000 грн.

      Бурдельний Микола Станіславович

      Спеціаліст з нерухомості (ЦН "Золотий ключ")

      Оренда комерційного приміщення 47.7 м.кв. Центр вул. Грушевського 57. Приміщення на 2 поверсі в 3-х поверховий будівлі, Фасадне, світле і просторе, утеплення з зовні. Великий трафік людей і авто.
      Здається…

      Детальніше

      Коментарі