ул. Погребняка — Продається торгівельний майданчик
(г. Кривой Рог, Центрально-Городской район)
119000 $
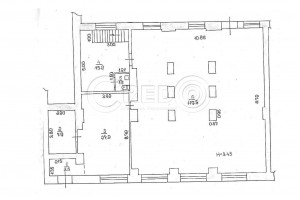
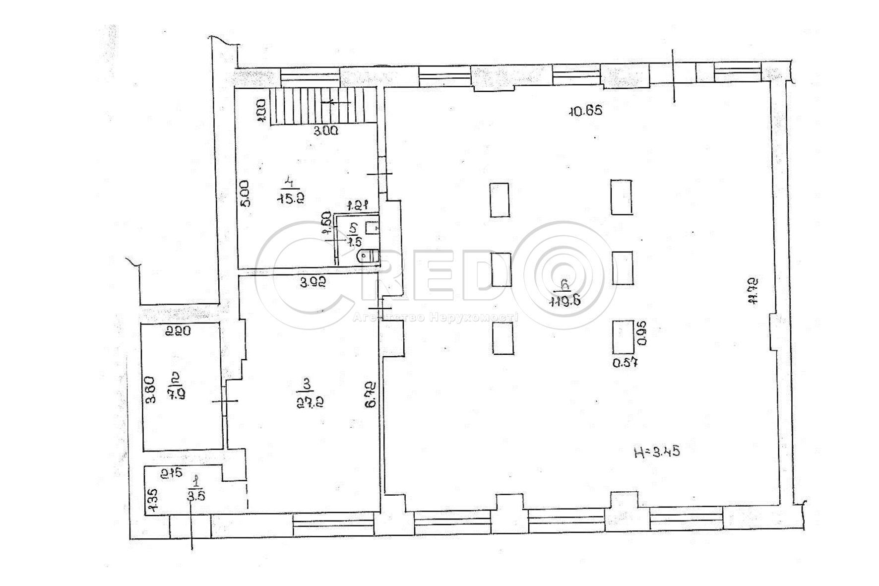
Загальна площа: 193 кв.м
Поверх: 1
К-ть поверхів: 3
Продаж магазину на "Карачунах". - Центрально Міський район - вул. Алмазна, 4
Технічні характеристики: - перший поверх 5-ти поверхового житлового будинку - "червона лінія" - приміщення в робочому станні - великі вітражні вікна - парковка
Планування об’єкту: - загальна площа -193 кв.м - перший поверх-175 кв.м - Н=3,45м - другий поверх-18 кв.м - Н=2,14м - окремий центральний та додатковий входи
Логістична розв’язка: - приміщення розташоване в спальному мікрорайоні - поруч зупинка громадського транспорту - магазини, аптеки та безліч інших магазинів - великий автомобільний та пішохідний трафік Продаж 119 000 у.о.
За будь-якими питаннями за цією або іншими пропозиціями звертайтесь 067 696 16 51. З повагою, команда Credo!