Вхід на сайт

Ел. пошта:
Пароль:

Реєстрація на сайті

Призвіще: Область:
Ім'я: Населений пункт:
    По батькові: Номер телефону:
    Ел. пошта: Компанія:
      Пароль: Посада:
      Повторіть пароль: Рік початку роботи:
      Фото:
      З правилами розміщення об'єктів погоджуюсь

      Забули пароль?

      Вкажіть ел. пошту — ми надішлемо Вам новий пароль для входу
      Ел. пошта:

      Проблема на сайті

      Закрити
      Ваш e-mail:
      (необов'язково)
      Розкажіть нам, що сталось

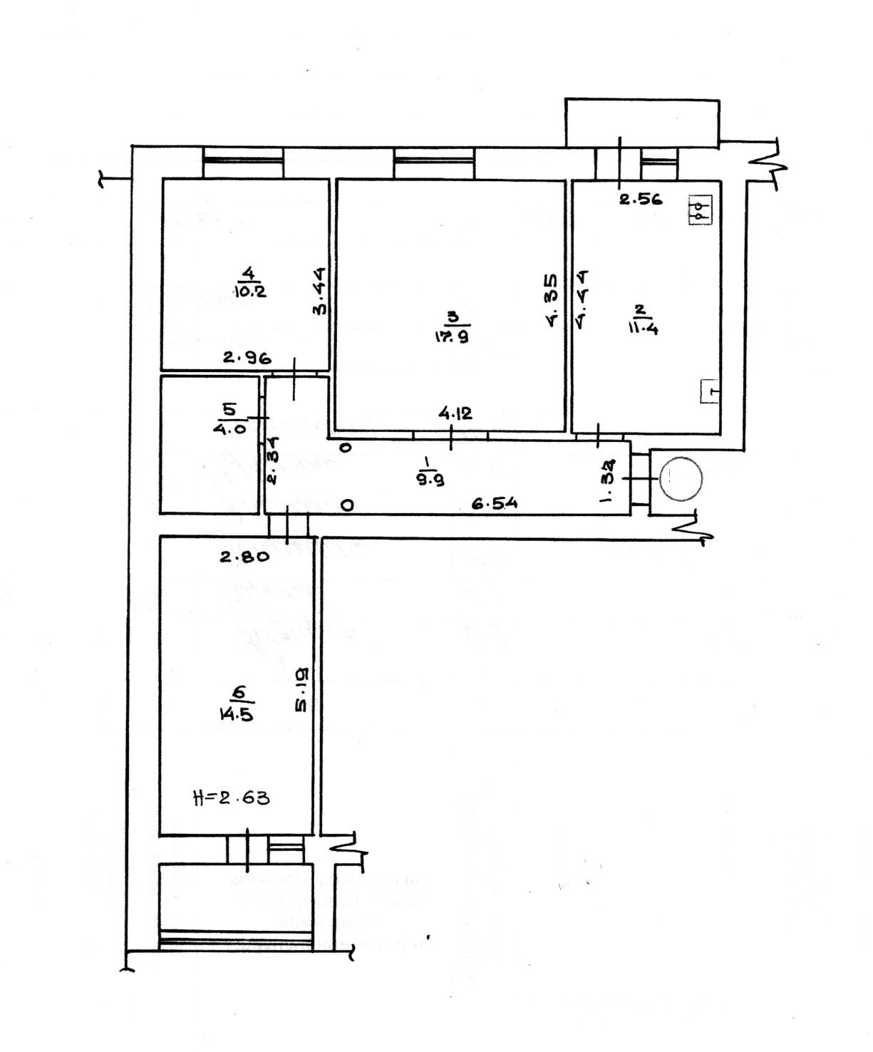
      ул. Ватутина — Продається квартира

      (г. Полтава, Киевский район)

      88000 $

      Загальна площа: 70 кв.м

      Жила площа: 42 кв.м

      Площа кухні: 11 кв.м

      Кімнат: 3

      Поверх: 2

      К-ть поверхів: 7

      Продаж 3 кімнатної квартири (індивідуальний проект) в Центрі Полтави, поряд з школою №38, по вул. Ватутіна, 9/68
      Характеристика квартири:
      - Загальна площа - 70,1 кв.м;
      - Житлова площа – 42,6 кв.м;
      - кімната-17,9 кв.м;
      - кімната-14,5 кв.м;
      - кімната-10,2 кв.м
      - Кухня – 11,4 кв.м;
      - Поверх – 2/7 пов. цегляного будинку
      - Висота стель Н= 2, 65 м;
      - Балкон та лоджія засклені
      комунікації:
      - централізовані;
      - підігрів води - газова колонка,
      - лічильники: світло, газ, холодне та гаряче водопостачання, опалення(на підїзд)
      стан:
      - вікна м/п
      - ремонту 5-7 років

      Надіслати скаргу

      Закрити
      Поскаржитися на об'єкт «ул. Ватутина (г. Полтава, Киевский район)»
      Ваш коментар:(Необов'язково)
      Ваша скарга буде надіслана ріелтору, що розмістив об'єкт, а також адміністрації сайту АФНУ.
      Ваше ім'я:
      (Обов'язково)
      Ваш e-mail для відповіді:
      (Обов'язково)

      Вам также могут подойти

      ул. Гагарина (г. Полтава, Октябрьский район) - Продається квартира, 90000 $ - АФНУ

      Оновлено: 14 листопада 2025

      Розміщено: 31 березня 2021

      Продається квартира

      2 кімн., площа 56/30/10, поверх 4/4

      г. Полтава, ул. Гагарина

      90000 $

      Остапченко Александр Степанович

      соучредитель (Агентство недвижимости "Альянс риэлти" Полтава)

      Продажа 2-х комнатной квартиры в Центре Полтавы в р-не Памятного знака героям Небесной сотни (бывшего памятника Ленина) по ул. Гагарина ремонт 2020 г., первая сдача, новая мебель и бытовая техника…

      Детальніше

      ул. Чорновола (г. Полтава, Октябрьский район) - Продається квартира, 75000 $ - АФНУ

      Оновлено: 25 листопада 2025

      Розміщено: 18 липня 2025

      Продається квартира

      2 кімн., площа 48.2/27.3/7.7, поверх 4/9

      г. Полтава, ул. Чорновола

      75000 $

      Остапченко Александр Степанович

      соучредитель (Агентство недвижимости "Альянс риэлти" Полтава)

      Продаж 2 кімнатної квартири (апартаменти з однією спальнею) в будинку бізнес класу, в Центрі Полтави, р-н вул. Чорновола, поряд з гімназією №6
      Характеристика квартири:
      - загальна площа – 48,20 кв.м;…

      Детальніше

      ул. Чорновола (г. Полтава, Октябрьский район) - Продається квартира, 75000 $ - АФНУ

      Оновлено: 14 листопада 2025

      Розміщено: 22 липня 2025

      Продається квартира

      2 кімн., площа 48.2/27.3/7.7, поверх 4/9

      г. Полтава, ул. Чорновола

      75000 $

      Остапченко Александр Степанович

      соучредитель (Агентство недвижимости "Альянс риэлти" Полтава)

      Продаж 2 кімнатної квартири (апартаменти з однією спальнею) в будинку бізнес класу, в Центрі Полтави, р-н вул. Чорновола, поряд з гімназією 6
      Характеристика квартири:
      - загальна площа 48, 20 кв.м;…

      Детальніше

      Коментарі