Вхід на сайт

Ел. пошта:
Пароль:

Реєстрація на сайті

Призвіще: Область:
Ім'я: Населений пункт:
    По батькові: Номер телефону:
    Ел. пошта: Компанія:
      Пароль: Посада:
      Повторіть пароль: Рік початку роботи:
      Фото:
      З правилами розміщення об'єктів погоджуюсь

      Забули пароль?

      Вкажіть ел. пошту — ми надішлемо Вам новий пароль для входу
      Ел. пошта:

      Проблема на сайті

      Закрити
      Ваш e-mail:
      (необов'язково)
      Розкажіть нам, що сталось

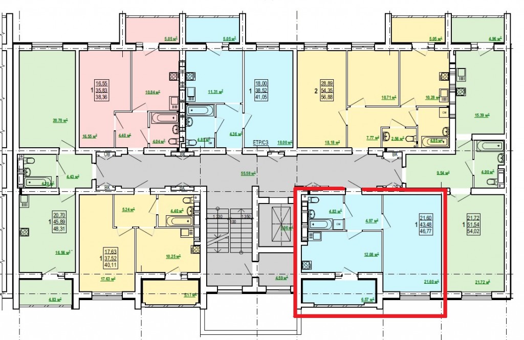
      пр. Победы — Продається квартира в новобудові

      (г. Харьков, Дзержинский район)

      41900 $

      Загальна площа: 46 кв.м

      Жила площа: 21 кв.м

      Площа кухні: 12 кв.м

      Кімнат: 1

      Поверх: 5

      К-ть поверхів: 9

      Продається 1-кімнатна квартира в ЖК Перемоги 2, пр.Перемоги 86.
      Квартира знаходитися в будинку №3 секция 5.
      Здача будинку в 4 кварталі 2020.
      Квартира повністю під ремонт, після будівельників.
      ЖК Перемоги розташований в 10-ми хвилинах ходьби від кінцевої зупинки тролейбусів (2, 40), маршрутних таксі (45е, 55Е, 119е, 221е, 305е).
      Також в пішохідній доступності знаходиться станція метро «Перемога». Недалеко від ділянки розташовано кілька великих супермаркетів, таких як «Метро», «Рост», «Клас» і «Сільпо», будівельний гіпермаркет «Епіцентр», ТРК «Караван», продовольчий ринок, магазини і кафе, тренажерні зали та салони краси.

      Надіслати скаргу

      Закрити
      Поскаржитися на об'єкт «пр. Победы (г. Харьков, Дзержинский район)»
      Ваш коментар:(Необов'язково)
      Ваша скарга буде надіслана ріелтору, що розмістив об'єкт, а також адміністрації сайту АФНУ.
      Ваше ім'я:
      (Обов'язково)
      Ваш e-mail для відповіді:
      (Обов'язково)

      Коментарі