Вхід на сайт

Ел. пошта:
Пароль:

Реєстрація на сайті

Призвіще: Область:
Ім'я: Населений пункт:
    По батькові: Номер телефону:
    Ел. пошта: Компанія:
      Пароль: Посада:
      Повторіть пароль: Рік початку роботи:
      Фото:
      З правилами розміщення об'єктів погоджуюсь

      Забули пароль?

      Вкажіть ел. пошту — ми надішлемо Вам новий пароль для входу
      Ел. пошта:

      Проблема на сайті

      Закрити
      Ваш e-mail:
      (необов'язково)
      Розкажіть нам, що сталось

      ул. Героев Труда, 1 — Продається квартира в новобудові

      (г. Харьков, Киевский район)

      39900 $

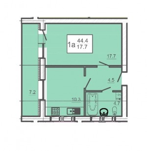
      Загальна площа: 44 кв.м

      Жила площа: 17 кв.м

      Площа кухні: 10 кв.м

      Кімнат: 1

      Поверх: 16

      К-ть поверхів: 16

      Продаж 1-кімнатної квартири в новобудові ЖК "Оазис" по вул. Героїв Праці, 1.
      Неподалік пролягають маршрути трамваїв і автобусів, станція метро «Героїв праці» знаходиться в 2-ух кілометрах. У безпосередній близькості знаходиться: ТРЦ "Караван" і "Дафі" де ви зможете знайти абсолютно все від звичайних продовольчих товарів так і чим зайняти себе на вихідних, садки, школи.
      Не варто забувати що сам комплекс розташований з одного боку на береговій лінії, а з іншого сосновий бір.
      Проектом передбачено благоустрій двору, що включає роботи з озеленення, формуванню газонів, пішохідних зон; облаштування дитячих і спортивних майданчиків, місць для відпочинку.
      -
      Квартира розташована в будинку 3 - здача 4 квартал 2021 року, до ремонту можна буде приступати з весни 2022 року.
      Площа квартири:
      Загальна площа - 44 м²;
      Житлова площа - 17 м²;
      Кухня - 10 м².
      -
      СТАН КВАРТИРІ:
      • потрібен капітальний ремонт.
      КОМПЛЕКТАЦІЯ КВАРТИР:
      • встановлені перегородки як зазначено на плані;
      • металопластикові вікна (viknaland);
      • горизонтальна розводка опалення та радіатори опалення (є можливість поставити лічильник на тепло, регулятори на батареї і контролювати подачу тепла в квартиру, індивідуально);
      • вхідні залізні двері;
      • лічильник на електрику;
      • підведені комунікації (холодна, гаряча вода);
      • каналізація;
      • заведено електрику;
      • зроблено зовнішнє утеплення стін (утеплювач мінеральна вата 100 мм).
      -
      Буду радий Вас чути):
      Пн-Пт - 8: 00-20: 00.
      Сб-Нд - II: 00-20: 00
      Святкові дні - вихідний.

      Надіслати скаргу

      Закрити
      Поскаржитися на об'єкт «ул. Героев Труда, 1 (г. Харьков, Киевский район)»
      Ваш коментар:(Необов'язково)
      Ваша скарга буде надіслана ріелтору, що розмістив об'єкт, а також адміністрації сайту АФНУ.
      Ваше ім'я:
      (Обов'язково)
      Ваш e-mail для відповіді:
      (Обов'язково)

      Коментарі