Вхід на сайт

Ел. пошта:
Пароль:

Реєстрація на сайті

Призвіще: Область:
Ім'я: Населений пункт:
    По батькові: Номер телефону:
    Ел. пошта: Компанія:
      Пароль: Посада:
      Повторіть пароль: Рік початку роботи:
      Фото:
      З правилами розміщення об'єктів погоджуюсь

      Забули пароль?

      Вкажіть ел. пошту — ми надішлемо Вам новий пароль для входу
      Ел. пошта:

      Проблема на сайті

      Закрити
      Ваш e-mail:
      (необов'язково)
      Розкажіть нам, що сталось

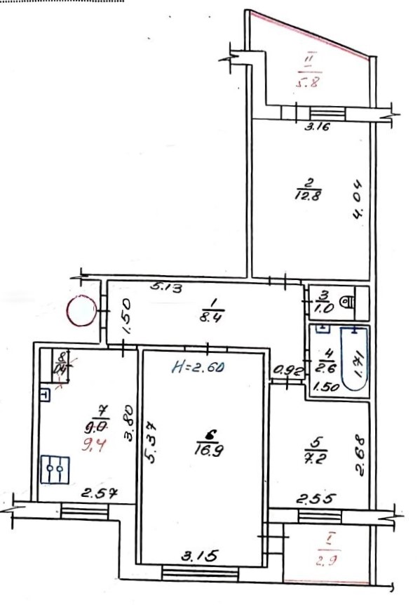
      бул. Щепотьева — Продається квартира

      (г. Полтава, Октябрьский район)

      55000 $

      Загальна площа: 67 кв.м

      Жила площа: 37 кв.м

      Площа кухні: 10 кв.м

      Кімнат: 3

      Поверх: 3

      К-ть поверхів: 10

      Продаж 3 кімнатної квартири покращеного планування на Садах-3 (м-н Огнівка) на бульвару Щепотьєва з 5 річним ремонтом, меблями та побутовою технікою
      Характеристика квартири:
      - загальна площа 67 кв.м;
      - житлова площа 36, 9 кв.м;
      - кухня 9, 4 кв.м;
      - 3 поверх в 10 поверховому будинку, не кутова;
      - висота стелі Н= 2, 6 м
      Комунікації:
      - централізований, тепловий лічильник опалення додому;
      - лічильники на воду, світло, газ.
      Стан:
      - вікна м/п
      - ремонту 5 років
      - продаж з меблями
      - є зовнішнє утеплення квартири
      Вартість квартири $55000, додатково сплачуються комісійні Агенції нерухомості 3%

      Надіслати скаргу

      Закрити
      Поскаржитися на об'єкт «бул. Щепотьева (г. Полтава, Октябрьский район)»
      Ваш коментар:(Необов'язково)
      Ваша скарга буде надіслана ріелтору, що розмістив об'єкт, а також адміністрації сайту АФНУ.
      Ваше ім'я:
      (Обов'язково)
      Ваш e-mail для відповіді:
      (Обов'язково)

      Вам также могут подойти

      Школьный переулок (г. Полтава, Октябрьский район) - Продається квартира, 48000 грн. - АФНУ

      Оновлено: 1 вересня

      Розміщено: 12 травня 2022

      Продається квартира

      3 кімн., площа 60/38/8, поверх 4/5

      г. Полтава, Школьный переулок

      48000 грн.

      Остапченко Александр Степанович

      соучредитель (Агентство недвижимости "Альянс риэлти" Полтава)

      Продажа 3 комнатной квартиры с раздельными комнатами в Цетре, по переулку Школьному (р-н Аграрной академии), ремонту 10 лет
      Характеристика квартиры:
      - Общая площадь - 60 м.кв;
      - Жилая площадь- 38…

      Детальніше

      ул. Станиславского (г. Полтава, Октябрьский район) - Продається квартира, 55000 $ - АФНУ

      Оновлено: 24 вересня

      Розміщено: 5 квітня 2024

      Продається квартира

      2 кімн., площа 48.6/13.6/22.1, поверх 1/9

      г. Полтава, ул. Станиславского

      55000 $

      Остапченко Александр Степанович

      соучредитель (Агентство недвижимости "Альянс риэлти" Полтава)

      Продам 2 кімнатну квартиру (апартаменти з однією спальнею) у Полтаві, на м-ні Сади-3, по вул. Станіславського в новому цегляному будинку з 5-річним ремонтом, встановлено лічильник на систему опалення, гарячого та…

      Детальніше

      бул. Боровиковского (г. Полтава, Октябрьский район) - Продається квартира, 65000 $ - АФНУ

      Оновлено: 1 вересня

      Розміщено: 25 лютого

      Продається квартира

      3 кімн., площа 65/39/9.5, поверх 6/9

      г. Полтава, бул. Боровиковского

      65000 $

      Остапченко Александр Степанович

      соучредитель (Агентство недвижимости "Альянс риэлти" Полтава)

      Стильна 3-кімнатна квартира в стилі Прованс на бульварі Боровиковського
      Локація: мікрорайон Огнівка (Сади-3) — один з найзеленіших та затишних районів Полтави з розвиненою інфраструктурою.

      Основні характеристики:
      - загальна площа: 65,3…

      Детальніше

      Коментарі