Вхід на сайт

Ел. пошта:
Пароль:

Реєстрація на сайті

Призвіще: Область:
Ім'я: Населений пункт:
    По батькові: Номер телефону:
    Ел. пошта: Компанія:
      Пароль: Посада:
      Повторіть пароль: Рік початку роботи:
      Фото:
      З правилами розміщення об'єктів погоджуюсь

      Забули пароль?

      Вкажіть ел. пошту — ми надішлемо Вам новий пароль для входу
      Ел. пошта:

      Проблема на сайті

      Закрити
      Ваш e-mail:
      (необов'язково)
      Розкажіть нам, що сталось

      без комісії ул. Никольско-Слободская, 8 — Продається квартира в новобудові

      (г. Киев, Днепровский район)

      85000 $

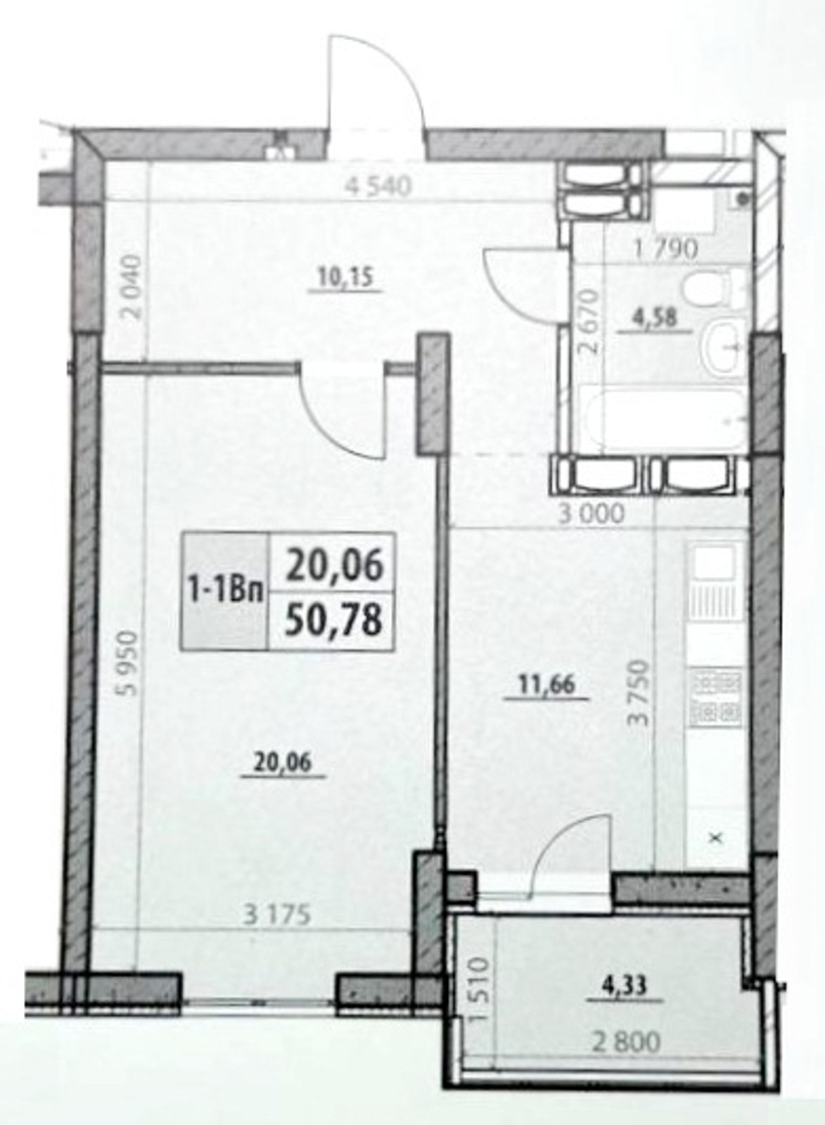
      Загальна площа: 50 кв.м

      Жила площа: 20 кв.м

      Площа кухні: 11 кв.м

      Кімнат: 1

      Поверх: 16

      К-ть поверхів: 25

      Продаж 1к видової квартири з краєвидом на правий берег Київа та на Дніпро.
      ЖК Русанівська гавань, 22-25 будинок, з документами. Микільско-Слобідська, 8.
      Вид на Дніпро і правий берег.
      Будинок зданий, можна заходити на ремонтні роботи. Висота стелі 3 метри. Цегляні стіни.
      ЖК Русанівська гавань-це сучасний новий ЖК на березі Дніпра з прямим виходом на набережну, дитячими майданчиками та спортивними комплексами. Поряд є все необхідне- ТРЦ, виставковий зал, садочки, школи, ринок, театр та інше.
      Можлива продаж під Е-Оселю.
      Є пропозиції по іншим варіантам.
      85000 у.е. без комісії

      Надіслати скаргу

      Закрити
      Поскаржитися на об'єкт «ул. Никольско-Слободская, 8 (г. Киев, Днепровский район)»
      Ваш коментар:(Необов'язково)
      Ваша скарга буде надіслана ріелтору, що розмістив об'єкт, а також адміністрації сайту АФНУ.
      Ваше ім'я:
      (Обов'язково)
      Ваш e-mail для відповіді:
      (Обов'язково)

      Вам также могут подойти

      ул. Бориспольская, 26В (г. Киев, Дарницкий район) - Продається квартира, 101000 $ - АФНУ

      Оновлено: 15 грудня 2025

      Розміщено: 18 березня 2025

      Продається квартира

      2 кімн., площа 87/37/14, поверх 11/15

      г. Киев, ул. Бориспольская, 26В

      101000 $ без комісії

      Холод Наталія Володимирівна

      Специалист по продаже недвижимости (Агенція нерухомості "ВЕСЬ СВІТ")

      Продаж без комісії 2к квартира, вул.Бориспільська 26В.
      Будинок 2007р., видова на зелену паркову зону.
      Площа 87,1/37,5/14, поверх 11/15.
      Дуже простора, світла, тепла, з великим подвійним балконом та просторою кухнею. Ремонт,…

      Детальніше

      ул. Бориспольская, 26В (г. Киев, Дарницкий район) - Продається квартира, 101000 $ - АФНУ

      Оновлено: 15 грудня 2025

      Розміщено: 18 березня 2025

      Продається квартира

      2 кімн., площа 87/37/14, поверх 11/15

      г. Киев, ул. Бориспольская, 26В

      101000 $ без комісії

      Холод Наталія Володимирівна

      Специалист по продаже недвижимости (Агенція нерухомості "ВЕСЬ СВІТ")

      Продаж без комісії 2к квартира, вул.Бориспільська 26В.
      Будинок 2007р., видова на зелену паркову зону.
      Площа 87,1/37,5/14, поверх 11/15.
      Дуже простора, світла, тепла, з великим подвійним балконом та просторою кухнею. Ремонт,…

      Детальніше

      Коментарі