Вхід на сайт

Ел. пошта:
Пароль:

Реєстрація на сайті

Призвіще: Область:
Ім'я: Населений пункт:
    По батькові: Номер телефону:
    Ел. пошта: Компанія:
      Пароль: Посада:
      Повторіть пароль: Рік початку роботи:
      Фото:
      З правилами розміщення об'єктів погоджуюсь

      Забули пароль?

      Вкажіть ел. пошту — ми надішлемо Вам новий пароль для входу
      Ел. пошта:

      Проблема на сайті

      Закрити
      Ваш e-mail:
      (необов'язково)
      Розкажіть нам, що сталось

      без комісії Прорізна, 3 — Продається будинок

      (с. Торфяное, Бородянский район)

      105000 $

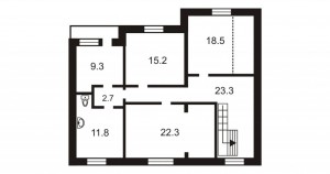
      Загальна площа: 192 кв.м

      Площа ділянки: 32 сот

      Кімнат: 4

      К-ть поверхів: 2

      Продаж двохповерхового будинку в Київської області, в с. Торфʼяне.
      Загальна площа будинку - 192,3 кв.м. В будинку є: 4 спальні кімнати, вітальня, кухня, кабінет, комора, підвал, два с/у. На першому поверсі зроблен повністю ремонт, всі меблі та техніка залишаються.

      Ділянка площею - 0,328 га (32,8 сотки). Побудована окрема котельня з двома котлами (твердопаливний та електродний). На ділянці є свердловина 63 м, також є система очищення та фільтрації води, автономна каналізація (біо септик). Встановлено спутникове телебачення та Інтернет, є можливість підключення кабельного Інтернету.

      На ділянці зроблен ландшафтний дизайн, посаджені рідкісні хвойні дерева, також є невеликий родючий сад. Поряд з будинком є великий ліс та озеро. Цей будинок – дивовижне місце для життя дружньої родини.
      Можливий продаж будинку за постановами.

      Поруч є школа, дит.садок, магазин продуктів, АТБ.

      Надіслати скаргу

      Закрити
      Поскаржитися на об'єкт «Прорізна, 3 (с. Торфяное, Бородянский район)»
      Ваш коментар:(Необов'язково)
      Ваша скарга буде надіслана ріелтору, що розмістив об'єкт, а також адміністрації сайту АФНУ.
      Ваше ім'я:
      (Обов'язково)
      Ваш e-mail для відповіді:
      (Обов'язково)

      Коментарі