ул. Независимости Украины — Здається торгівельний майданчик
(г. Кривой Рог, Долгинцевский район)
200 грн. за кв.м.
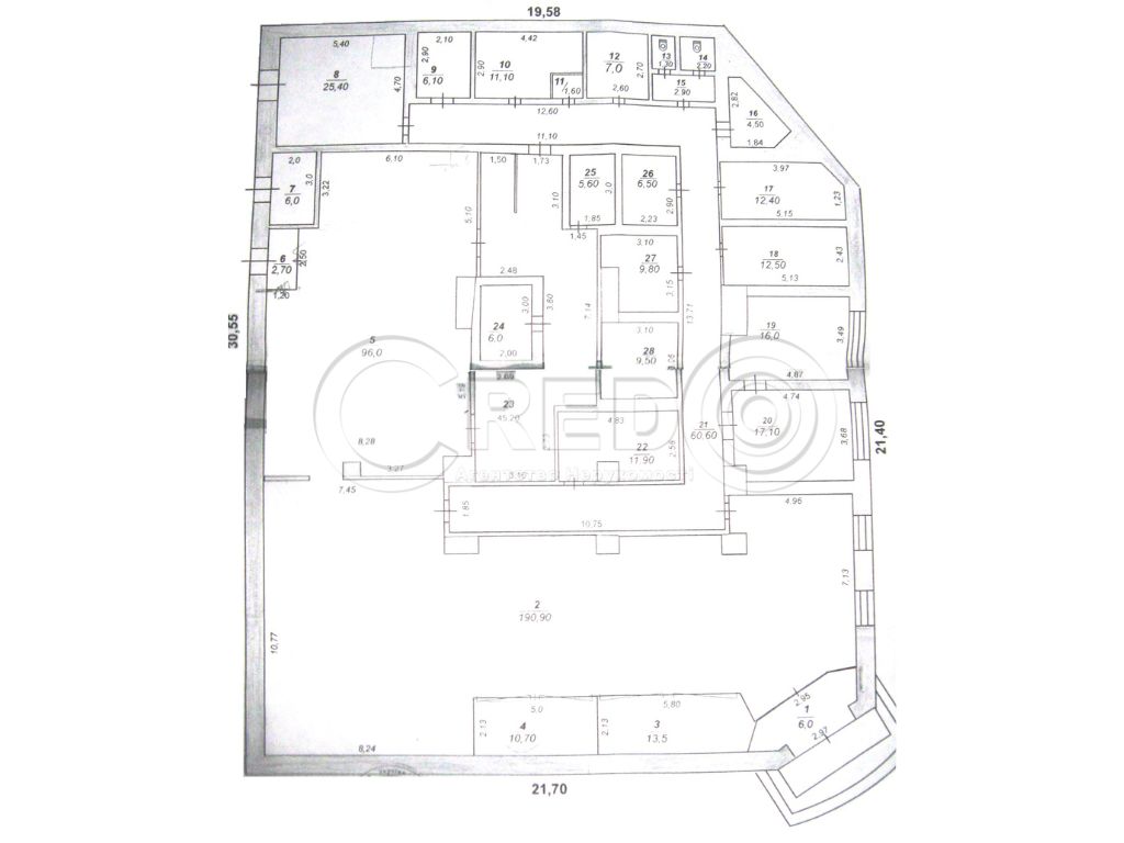
Пропонуємо в оренду приміщення в Торговому Комплексі, що розташований по вул. Незалежності України Про об'єкт: - загальна площа - 254кв.м. - вільного планування, в хорошому стані, Комунікації: - електроенергія - 380V - автономне газове опалення - відключено - вода, каналізація - Інтернет Локація: Навпроти супермаркет VARUS, магазини, дитячий садок, поліклініка сімейних лікарів. Оренда 200грн/кв.м. + комун. платежі. Послуга агенції 50%. За будь-якими питаннями за цією або схожими пропозиціями звертайтесь за номером телефону, де вам відповість наш ріелтор 097 541 73 31. З повагою, команда Credo!
Оновлено: 26 лютого
Розміщено: 12 лютого 2024
Вам также могут подойти
Оновлено: 9 березня
Розміщено: 16 травня 2025
площа 562, поверх 1/9
г. Кривой Рог, Володимира Великого
250 грн. за кв.м.
Літвинова Ірина Вікторівна
Оренда торгового приміщення вул.Володимира Великого Саксаганський район Технічні характеристики: - перший поверх 9-ти поверхового житлового будинку - "червона лінія" - в приміщенні зроблено капітальний ремонт Планування об’єкту: - загальна площа…
Детальніше
Оновлено: 8 квітня
Розміщено: 22 серпня 2025
площа 530, поверх 1/4
г. Кривой Рог, пл. 95 - Квартал
250 грн. за кв.м.
Літвинова Ірина Вікторівна
Оренда приміщення в ТК на 95 кварталі - Саксаганський район - пл. 95 квартал Технічні характиристики: - окрема будівля - 1-й та 2-й поверх 4-поверхового торгівельного комплексу - окремий вхід…
Детальніше
Оновлено: 2 березня
Розміщено: 2 березня
площа 210, поверх 2/2
г. Кривой Рог, Івана Авраменка
110 грн. за кв.м.
Літвинова Ірина Вікторівна
Оренда приміщення, вул.Івана Авраменка, ринок «Вечіній» Окремо розташована будівля. Технічні характеристики: - Приміщення розташоване на 2 поверсі 2-поверхової будівлі. - Загальна площа 210кв.м. - Висота стелі 3,40м. - Великі вітражні…
Детальніше
Коментарі