Вхід на сайт

Ел. пошта:
Пароль:

Реєстрація на сайті

Призвіще: Область:
Ім'я: Населений пункт:
    По батькові: Номер телефону:
    Ел. пошта: Компанія:
      Пароль: Посада:
      Повторіть пароль: Рік початку роботи:
      Фото:
      З правилами розміщення об'єктів погоджуюсь

      Забули пароль?

      Вкажіть ел. пошту — ми надішлемо Вам новий пароль для входу
      Ел. пошта:

      Проблема на сайті

      Закрити
      Ваш e-mail:
      (необов'язково)
      Розкажіть нам, що сталось

      пер. Соколова — Продається квартира

      (г. Полтава, Ленинский район)

      65000 $

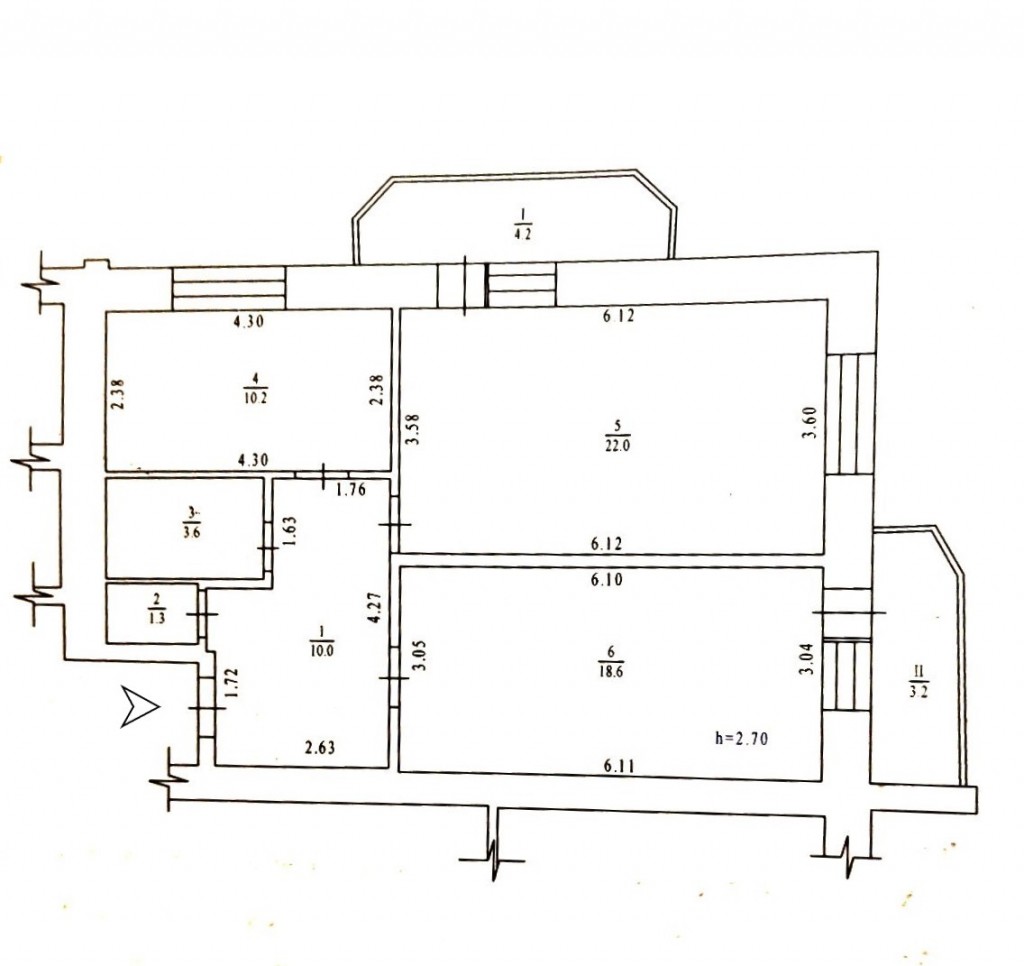
      Загальна площа: 73.1 кв.м

      Жила площа: 40.6 кв.м

      Площа кухні: 10.2 кв.м

      Кімнат: 2

      Поверх: 2

      К-ть поверхів: 9

      Продаж 2 кімнатної квартири на Подолі, район вул. Богдана Хмельницького, 7-9 в новому будинку, з 10-ти річним ремонтом, автономне опалення

      Характеристика квартири:
      - загальна площа 73,1 кв.м;
      - житлова площа 40,6 кв.м;
      - кімната- 22,0 кв.м;
      - кімната- 18,6 кв.м;
      - кухня 10,2 кв.м;
      - санвузол окремий;
      - поверх 2/9 пов. цегляного будинку;
      - 2 балкони засклені
      - висота стель Н= 2,7 м;
      Комунікації:
      - централізовані;
      - опалення та підігрів води- двоконтурний котел,
      - лічильники: світло, газ, холодне водопостачання
      Стан:
      - вікна м/п
      - 10-ти річний ремонт
      Вартість квартири:
      - $65000 (на руки) + витрати по нотаріальному оформленню угоди + послуги агенції нерухомості

      Надіслати скаргу

      Закрити
      Поскаржитися на об'єкт «пер. Соколова (г. Полтава, Ленинский район)»
      Ваш коментар:(Необов'язково)
      Ваша скарга буде надіслана ріелтору, що розмістив об'єкт, а також адміністрації сайту АФНУ.
      Ваше ім'я:
      (Обов'язково)
      Ваш e-mail для відповіді:
      (Обов'язково)

      Вам также могут подойти

      ул. Короленко (г. Полтава, Октябрьский район) - Продається квартира, 57000 $ - АФНУ

      Оновлено: 6 квітня

      Розміщено: 19 грудня 2025

      Продається квартира

      2 кімн., площа 63/28/6, поверх 1/3

      г. Полтава, ул. Короленко

      57000 $

      Остапченко Александр Степанович

      соучредитель (Агентство недвижимости "Альянс риэлти" Полтава)

      ПРОДАМ 2-КІМНАТНУ КВАРТИРУ ТИПУ ТАУНХАУС з додатковим приватним виходом (дивись на плані вхід 2) у задній дворик (палісадник) у ЦЕНТРІ ПОЛТАВИ
      Розташування:
      вул. Короленка, поруч із Березовим сквером — комфортне…

      Детальніше

      Юлиана Матвийчука (г. Полтава, Октябрьский район) - Продається квартира, 70000 $ - АФНУ

      Оновлено: 6 квітня

      Розміщено: 4 березня

      Продається квартира

      3 кімн., площа 71/55.4/6.7, поверх 4/5

      г. Полтава, Юлиана Матвийчука

      70000 $ без комісії

      Остапченко Александр Степанович

      соучредитель (Агентство недвижимости "Альянс риэлти" Полтава)

      ПРОДАМ 3-КІМНАТНУ КВАРТИРУ В ЦЕНТРІ ПОЛТАВИ

      Локація: вул. Юліана Матвійчука (на розі вулиць Юліана Матвійчука та Котляревського) комфортний та затишний район для життя в самому центрі міста з автономним опаленням.…

      Детальніше

      Коментарі