Вхід на сайт

Ел. пошта:
Пароль:

Реєстрація на сайті

Призвіще: Область:
Ім'я: Населений пункт:
    По батькові: Номер телефону:
    Ел. пошта: Компанія:
      Пароль: Посада:
      Повторіть пароль: Рік початку роботи:
      Фото:
      З правилами розміщення об'єктів погоджуюсь

      Забули пароль?

      Вкажіть ел. пошту — ми надішлемо Вам новий пароль для входу
      Ел. пошта:

      Проблема на сайті

      Закрити
      Ваш e-mail:
      (необов'язково)
      Розкажіть нам, що сталось

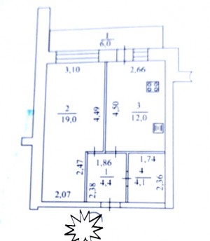
      Веретенівська, 3/1 — Продається квартира

      (г. Сумы, Ковпаковский район)

      31000 €

      Загальна площа: 39 кв.м

      Жила площа: 19 кв.м

      Площа кухні: 12 кв.м

      Кімнат: 1

      Поверх: 1

      К-ть поверхів: 5

      Продається квартира в красивому місці
      - Закритий двір
      - Теплий,цегляний будинок з товстими стінами
      - Комфортний низький поверх
      - Гарне планування
      - Косметичний ремонт
      - Автономне опалення
      - Простора лоджія
      - Великий,сухий підвал.
      Поряд зупинка,джерело,фруктовий сад і парк.
      Чудовий варіант для тих,хто любить спокій і природу.
      Телефонуйте та записуйтесь на перегляд!

      Надіслати скаргу

      Закрити
      Поскаржитися на об'єкт «Веретенівська, 3/1 (г. Сумы, Ковпаковский район)»
      Ваш коментар:(Необов'язково)
      Ваша скарга буде надіслана ріелтору, що розмістив об'єкт, а також адміністрації сайту АФНУ.
      Ваше ім'я:
      (Обов'язково)
      Ваш e-mail для відповіді:
      (Обов'язково)

      Вам также могут подойти

      ЗСУ, 20 (г. Сумы, Заречный район) - Продається квартира, 26000 $ - АФНУ

      Оновлено: 14 жовтня 2025

      Розміщено: 2 жовтня 2024

      Продається квартира

      2 кімн., площа 51/38/8, поверх 9/9

      г. Сумы, ЗСУ, 20

      26000 $

      Бойко Олена Миколаївна

      Риелтор (Dom.in)

      В продажу тепла 2к квартира у дев'ятому мікрорайоні
      - Евродвір
      - Чистий під'їзд
      - Криша перекрита
      - Тех. поверх
      - Ліфт працює
      - Не кутова
      - Вікна пластик
      - Труби…

      Детальніше

      пр. Михаила Лушпы, 5/6 (г. Сумы, Заречный район) - Продається квартира, 33000 $ - АФНУ

      Оновлено: 14 жовтня 2025

      Розміщено: 19 листопада 2024

      Продається квартира

      3 кімн., площа 91/53/15, поверх 11/11

      г. Сумы, пр. Михаила Лушпы, 5/6

      33000 $

      Бойко Олена Миколаївна

      Риелтор (Dom.in)

      В продажу 3к квартира в новобудові
      - Чистова обробка
      - Роздільне планування
      - Не кутова
      - Виведені плити на 2 балкони
      - Двоконтурний котел
      - Зверху є тех поверх
      -…

      Детальніше

      Коментарі