Вхід на сайт

Ел. пошта:
Пароль:

Реєстрація на сайті

Призвіще: Область:
Ім'я: Населений пункт:
    По батькові: Номер телефону:
    Ел. пошта: Компанія:
      Пароль: Посада:
      Повторіть пароль: Рік початку роботи:
      Фото:
      З правилами розміщення об'єктів погоджуюсь

      Забули пароль?

      Вкажіть ел. пошту — ми надішлемо Вам новий пароль для входу
      Ел. пошта:

      Проблема на сайті

      Закрити
      Ваш e-mail:
      (необов'язково)
      Розкажіть нам, що сталось

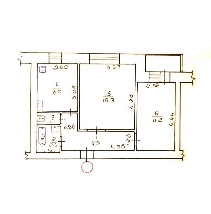
      бул. Богдана Хмельницкого — Продається квартира

      (г. Полтава, Ленинский район)

      50000 $

      Загальна площа: 47.1 кв.м

      Жила площа: 26.9 кв.м

      Площа кухні: 8 кв.м

      Кімнат: 2

      Поверх: 5

      К-ть поверхів: 9

      Продаж 2 кімнатної квартири на ближній Леваді по проспекту Богдана Хмельницького (поряд з дитячою обласною лікарнею), з окремими кімнатами та індивідуальним лічильником на опалення
      Характеристика квартири:
      - загальна площа 47,1 м2;
      - житлова площа 26,9 м2;
      - кухня 8,0 м2;
      - поверх – середній
      - лоджія засклена
      - не кутова
      - є комора на сходовому майданчику

      Комунікації:
      - централізовані;
      - індивідуальний лічильник на опалення;
      - гаряча вода- бойлер;
      - лічильники світла, газу, водопостачання

      Надіслати скаргу

      Закрити
      Поскаржитися на об'єкт «бул. Богдана Хмельницкого (г. Полтава, Ленинский район)»
      Ваш коментар:(Необов'язково)
      Ваша скарга буде надіслана ріелтору, що розмістив об'єкт, а також адміністрації сайту АФНУ.
      Ваше ім'я:
      (Обов'язково)
      Ваш e-mail для відповіді:
      (Обов'язково)

      Коментарі